Un chalet de luxe de 8 chambres situé sur la Place Centrale à Verbier, offrant 380m2 d'espace de vie alpin, finitions en chêne neuf, pierre naturelle et équipements de qualité. Cedrene est un chalet privé de retraite, parfaitement orienté avec un ensoleillement idéal et offrant des vues panoramiques sur les montagnes et le domaine skiable. La propriété peut accueillir confortablement jusqu'à 14 personnes avec deux espaces de vie séparés, cinq chambres à coucher avec salle de bains, une chambre double avec salle de douche séparée et deux autres chambres à coucher avec deux lits jumeaux partageant une salle de bains.
Le chalet dispose d'une entrée principale avec vestiaire et d'une entrée interne pour le local à ski via le garage.
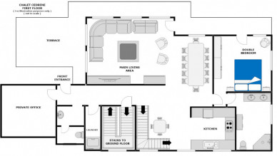
Au niveau de l'entrée du chalet se trouve un charmant salon et salle à manger avec une terrasse extérieure et un deck. Il y a également une cuisine séparée, des toilettes séparées pour les invités et une chambre principale avec une salle de bain spa en suite.
Le niveau de vie supérieur comprend 3 chambres doubles avec chacune une salle de bain, 2 autres chambres bien adaptées aux enfants ou à une nounou, ainsi que des toilettes séparées.
Le niveau inférieur du jardin est une retraite privée de 2 chambres à coucher avec salle de bain séparée, un deuxième espace de vie, ayant à la fois un accès par escalier interne au reste du chalet ainsi qu'une entrée extérieure indépendante. A ce niveau se trouve également un triple garage et un local à ski chauffé avec des chauffe-chaussures.
Le chalet dispose également d'un parking extérieur et son emplacement central est pratique pour se rendre à pied à la station de ski principale et idéal pour accéder aux boutiques et aux restaurants de la station.
Cedrene 14 accueille les clients de Chalet Owners depuis 2025.
En plus des services de location en libre-service pour les clients qui séjournent, nous sommes en mesure de fournir un petit déjeuner quotidien avec service de ménage ou un forfait de vacances au ski avec service de restauration complet. Nous voulons faire de vos vacances de ski à Verbier un voyage mémorable grâce aux efforts de notre service professionnel, à l'attention portée aux détails de toutes les demandes et à notre équipe de personnel de station extrêmement poli et efficace. Bien entendu, les journées épiques de poudreuse à Verbier sont toujours difficiles à battre.
Cette description a été automatiquement traduite de l'anglais et peut ne pas être complètement exacte.| Arrivée-Departure | Standard |
|---|
Tous les prix sont en Franc Suisse. Les dates sont fixées
Situé à proximité de la Place Centrale.
L'emplacement central est pratique pour traverser à pied la station de ski principale et idéal pour accéder aux boutiques et aux restaurants de la station.Cette description a été automatiquement traduite de l'anglais et peut ne pas être complètement exacte.
Chalet Cedrene 14 sleeps 14 guests across 8 bedrooms.
Chalet Cedrene 14 is located in Verbier, Suisse.
Rental prices start from CHF 12,600 per week. Final pricing depends on the dates selected.
You can send a booking request directly to the chalet host via the enquiry form on this page. Chalet Owners charges no booking fees and does not act as an agent — you book directly with the verified host. Confirmation is typically within 24 hours.
Payment is made directly to the chalet host. Once the host confirms your reservation, they will send you a contract and an invoice with their preferred payment method — typically bank transfer to the host’s business account, or by credit card when available. A deposit (usually 30–50%) secures the reservation, with the balance due before arrival. Chalet Owners does not collect or process any payment on behalf of hosts.
No. Chalet Owners is a direct-booking marketplace. There are no booking fees, service charges, or commissions added to the chalet host’s rate.
Je donne l'autorisation que mon prénom soit partagé avec l'hôte de Chalet Cedrene 14, Verbier. Veuillez noter qu'en soumettant le formulaire, vous ne confirmez pas une réservation. Le gérant du chalet vous contactera avec un devis et fournira les détails pour procéder à la réservation. Lors de la communication via CO, vous êtes d'accord avec les conditions d'utilisation et le traitement de communication décrits dans Conditions Générales. Pour des raisons de sécurité et de contrôle de la qualité, nous recommandons vivement de communiquer par l'intermédiaire de Chalet Owners.
Nous sommes basés dans les Alpes et vérifions chaque gérant et propriétaire du chalet
Vous réservez directement, donc les meilleurs prix sans frais supplémentaires sont garantis
Trouvez le chalet de luxe à louer facilement, grâce aux prix et à la disponibilité en temps réel

