Chalet Les Bardeaux is a charming property and well positioned above the centre of Verbier in a ski in – ski out position. An ideal property as a winter secondary residence offering nature, character, superb views and only a short stroll into the centre of the town or to the main ski station.
The first floor of the chalet has an entrance vestiaries with guest W/C which opens up into a delightful space of the living – dining – kitchen area. This entertaining space gives access onto a fabulous south facing terrace, balcony & vast garden as well as an open viewing mezzanine floor with tv room. There is also a separate study on this floor.
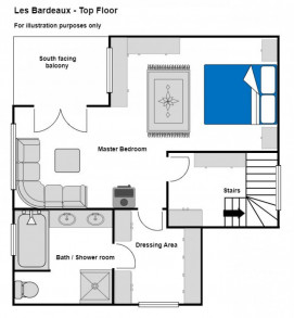
The second floor of the chalet has a private master suite offering a double bedroom, sofa area with balcony access, a walk in wardrobe and an en-suite with bath, shower & W/C.
The ground floor has 2 double bedrooms (one with en-suite bathroom) both with garden access, there is also a third double bedroom or bunk room, a separate shower room/WC, a separate laundry room with washer & dryer.
Chalet parking is a private exterior space on the chemin de Clambin.
Chalet access is from the road via a well built pedestrian set of stairs / path for 200 metres.
Les Bardeaux accueille les clients de Chalet Owners depuis 2025.
All self-catered bookings benefit from the following inclusive services:
• Exclusive use of accommodation and dedicated concierge for pre-planned reservations and in resort conciergerie service throughout your stay
• 10% Discount on Ski Hire with our partner shop located directly at the base of the ski piste (Medran ski station)
• Private or Group Ski Lesson reservations
• All rooms pre-made with fresh towels provided, all final housekeeping / linen expenses
• WIFI & cable television
• Nespresso coffee machine
• Check-in after 15h00 on day of arrival
• Check-out before 10h30 on day of departure
Note: Tourist taxes are charged per person per night and will be added to the rental amount
Adults chf 4.- / Children 6-16yrs chf 2.- / Children under 6yrs free
The following additional services are available for guests staying in self-catered chalets:
• Private airport transfers and in-resort driving service
• Pre-arrival grocery shopping
• A daily housekeeping service, with mid-week towel change
• Firewood delivery
• Private chef for cooked breakfasts, catered evening meals or private dinner parties
• Mountain guiding and/or heli-skiing
• In-house massage
• Child care
| Les tarifs de la nouvelle saison sont disponibles sur demande. Contacter l'hôte pour obtenir un devis personnalisé. |
Tous les prix sont en Franc Suisse. Les dates sont fixées
Chalet Les Bardeaux is a charming property and well positioned above the centre of Verbier in a ski in – ski out position. Chalet access is from the road via a well built pedestrian set of stairs / path for 200 metres.Cette description a été automatiquement traduite de l'anglais et peut ne pas être complètement exacte.
Chalet Les Bardeaux sleeps 9 guests across 4 bedrooms.
Chalet Les Bardeaux is located in Verbier, Suisse.
You can send a booking request directly to the chalet host via the enquiry form on this page. Chalet Owners charges no booking fees and does not act as an agent — you book directly with the verified host. Confirmation is typically within 24 hours.
Payment is made directly to the chalet host. Once the host confirms your reservation, they will send you a contract and an invoice with their preferred payment method — typically bank transfer to the host’s business account, or by credit card when available. A deposit (usually 30–50%) secures the reservation, with the balance due before arrival. Chalet Owners does not collect or process any payment on behalf of hosts.
No. Chalet Owners is a direct-booking marketplace. There are no booking fees, service charges, or commissions added to the chalet host’s rate.
Je donne l'autorisation que mon prénom soit partagé avec l'hôte de Chalet Les Bardeaux, Verbier. Veuillez noter qu'en soumettant le formulaire, vous ne confirmez pas une réservation. Le gérant du chalet vous contactera avec un devis et fournira les détails pour procéder à la réservation. Lors de la communication via CO, vous êtes d'accord avec les conditions d'utilisation et le traitement de communication décrits dans Conditions Générales. Pour des raisons de sécurité et de contrôle de la qualité, nous recommandons vivement de communiquer par l'intermédiaire de Chalet Owners.
Nous sommes basés dans les Alpes et vérifions chaque gérant et propriétaire du chalet
Vous réservez directement, donc les meilleurs prix sans frais supplémentaires sont garantis
Trouvez le chalet de luxe à louer facilement, grâce aux prix et à la disponibilité en temps réel

