С открытой джакузи, лыжами в / лыжами вне доступа и красивым интерьером, изысканный Tschoder в Санкт-Антон поистине единственный в своем роде.
На краю трассы, ведущей вниз к подъемнику Nasserein, в одном из самых завидных мест Санкт-Антон, находится красивая квартира Tschoder. Из квартиры открывается захватывающий вид на окружающие вершины и деревню, а гости могут кататься на лыжах в и из квартиры, что делает ее идеальным местом для самых разборчивых лыжников.
Недавно завершенный, этот поистине выдающийся дом представляет собой чуткое сочетание традиционных альпийских материалов с новейшим современным дизайном. Войдя в апартамент, вы сразу же почувствуете себя в свободном шале. Расположенное на трех этажах, вмещающее 14 человек в семи спальнях, использование пространства является исключительным. Квартира разделяет здание с другой маленькой квартирой.
Есть множество зон отдыха и развлечений, а владелец создал прекрасный уютный, но в то же время утонченный горный отдых. Богатые ткани, деревянные балки и роскошная мебель расположены на всей территории отеля, и эта роскошная недвижимость восхищает своим вниманием к деталям.
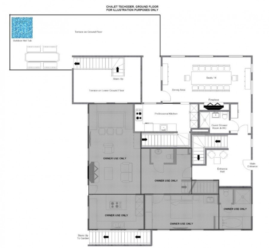
Вы входите в квартиру на первом этаже. Здесь вы найдете столовую, со столом на 14 персон, и замечательный открытый камин. Это идеальное место, чтобы насладиться гламурными ужинами с друзьями и семьей и поболтать о днях катания на лыжах. Также на этом этаже есть профессиональная кухня, где ваш шеф-повар может приготовить блюда. С этого этажа можно попасть на просторную террасу и открытую джакузи.
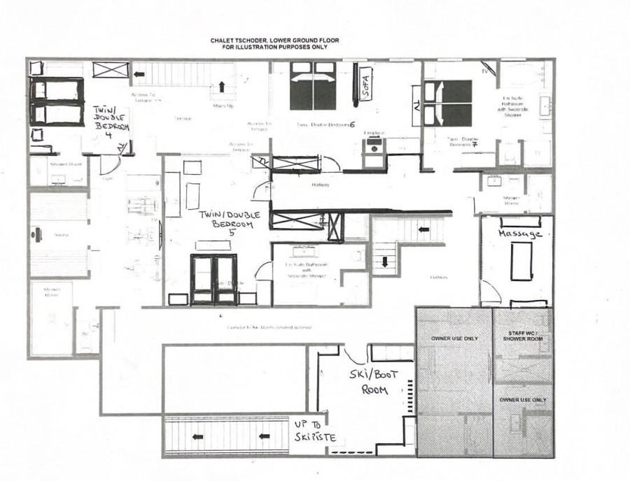
На нижнем первом этаже вы найдете три спальни с двумя односпальными кроватями/двумя односпальными кроватями. В первой из спален есть прекрасная ванная комната открытой планировки и отдельный душ, во второй спальне есть ванная комната с отдельной душевой кабиной, а в последней спальне есть отдельная душевая комната, пересекающая коридор. На этом этаже также находятся развлекательные и спа-центр.
Возвращаясь со склонов, вы можете войти в общую комнату для катания на лыжах с трассы, а также есть много места для хранения лыжной одежды, головных уборов и перчаток.
После катания на лыжах вы можете освежиться и омолаживаться в собственном тренажерном зале, успокоить уставшие мышцы с помощью сауны и массажа или окунуться в гидромассажную ванну на террасе.
Также на этом этаже находится кинозал с удобными диванами, идеально подходящими для вечернего кино.
Основная гостиная находится на первом этаже здания. В центре внимания находится потрясающая двухуровневая гостиная с центральным камином и видом на Сент-Антон. После катания на лыжах возвращайтесь домой, чтобы насладиться послеобеденными лакомствами на просторной террасе и наблюдать за тем, как лыжники возвращаются домой на главной трассе обратно в Nasserein.
Также на этом этаже находится кухня открытой планировки, три спальни и гостевая душевая. Есть две спальни с двумя односпальными/двумя односпальными кроватями, обе со смежными ванными комнатами и одна детская двухъярусная спальня, которая использует гостевую душевую комнату.
Главная спальня расположена на карнизе шале. Есть большая спальня с двуспальной кроватью с кабинетом, гостиной и ванной. Через частную лестничную площадку расположена примыкающая к ней душевая комната. Из этой комнаты открывается прекрасный вид.
Tschoder has been welcoming Chalet Owners guests since 2021.
Недвижимость сдаётся на условиях общественного питания, самообслуживания или только на условиях проживания.
Если независимость является ключевым фактором при выборе зимнего горнолыжного шале или апартаментов класса люкс, то для Вас идеальным вариантом будет только размещение. Вы получите постельное белье высочайшего качества, тапочки, халаты и роскошные ванные комнаты. С помощью услуги консьержа, включенной в стоимость проживания, мы позаботимся о том, чтобы ваши пропуска были готовы по прибытии, а ваш консьерж будет также готов зарезервировать столик в ресторане, провести инструктаж по катанию на лыжах и забронировать другие виды деятельности.
С самообслуживанием уборка осуществляется семь дней в неделю. Роскошные продукты для ванной комнаты от Acqua di Parma, лучшее постельное белье и свежие полотенца предоставляются, полотенца меняются в середине недели. Консьерж встретит вас в вашем отеле и по вашему запросу организует бронирование ресторанов, обучение катанию на лыжах, услуги гида вне трасс, катание на лыжах, зимние мероприятия и уход за детьми. Поскольку все наши консьержи являются высококвалифицированными инструкторами по горнолыжному спорту или сноуборду, они также обладают обширными знаниями о горах и преобладающих погодных условиях. Мы также можем организовать для вас дополнительные услуги в течение недели за дополнительную плату, включая услуги частных шеф-поваров, обслуживающий персонал, услуги водителя, а также дополнительную смену полотенец или постельного белья. Все дополнительные услуги предоставляются при наличии свободных мест.
В вашем отеле будет работать команда опытных зимних профессионалов, которые прошли обучение, чтобы понять тонкие детали, которые делают лыжный отпуск с обслуживанием исключительным и незабываемым. Безупречное обслуживание от начала и до конца оставит у вас ощущение, что от вашего пребывания у нас ничего не хочется. Мы понимаем и адаптируем наши услуги с полным вниманием к специфическим культурным нюансам, так что отдых на лыжах с нами - это ощущение безупречной роскоши.
Наша команда талантливых шеф-поваров - это опытные профессионалы, прошедшие обучение вместе с шеф-поварами, удостоенными звезд Michelin, работавшие в одних из лучших ресторанов мира, на борту всемирно известных супер-яхт. Наша команда с энтузиазмом использует местные сезонные продукты, и, работая вместе с нашими уважаемыми поставщиками, ваш шеф-повар будет работать с вами, чтобы создать вечернее меню, идеально подобранное для вашей группы. Дети, диетические требования и любые другие специфические пожелания будут обсуждены до вашего прибытия. И даже во время вашего пребывания персонал будет готов адаптировать план меню в соответствии с вашими пожеланиями.
| Заезд-Выезд | Стандарт | С Услугами |
|---|---|---|
| 13 Dec-20 Dec 2025 | € 34,500 | € 44,500 |
| 20 Dec - 27 Dec 2025 | Сдано | Сдано |
| 27 Dec - 03 Jan 2026 | Сдано | Сдано |
| 03 Jan-11 Jan 2026 | € 35,000 | € 45,500 |
| 11 Jan-18 Jan 2026 | Сдано | Сдано |
| 18 Jan-25 Jan 2026 | € 35,000 | € 45,500 |
| 25 Jan-01 Feb 2026 | € 35,000 | € 45,500 |
| 01 Feb-08 Feb 2026 | € 35,000 | € 45,500 |
| 08 Feb-15 Feb 2026 | Сдано | Сдано |
| 15 Feb-22 Feb 2026 | Сдано | Сдано |
| 22 Feb-01 Mar 2026 | € 35,000 | € 45,500 |
| 01 Mar-08 Mar 2026 | Сдано | Сдано |
| 08 Mar-15 Mar 2026 | € 35,000 | € 45,500 |
| 15 Mar-22 Mar 2026 | € 35,000 | € 45,500 |
| 22 Mar-29 Mar 2026 | € 35,000 | € 45,500 |
| 29 Mar-05 Apr 2026 | € 35,000 | € 45,500 |
| 05 Apr-12 Apr 2026 | € 35,000 | € 45,500 |
The standard rate includes the bed & breakfast option.
Все цены указаны в Евро. Даты фиксированные.
Расположен на краю главных лыжных трасс в Сен-Антоне, рядом с барами и ресторанами, это идеальное место для катания на лыжах/в горнолыжных курортах.
Гондола Nassreinbahn - 1 минута ходьбы.
Гальзигбан - 12 минут ходьбы
Центр деревни - в 10 минутах ходьбы или 2 минутах езды на автомобиле
Обычно шале имеет общие услуги по вождению с 8:30 утра до 1:00 утра, если продается с полным обслуживанием.Это описание было автоматически переведено с английского и может быть не совсем точным.
Я даю согласие на передачу информации о моём имени управляющему Шале Tschoder, Санкт Антон. Отправляя форму, вы не подтверждаете бронирование. Управляющий шале свяжется с вами и предоставит дополнительную информацию для бронирования. Обмениваясь информацией через платформу CO, вы соглашаетесь с условиями сервиса и обработкой информации, изложенными в Правила и условия. По соображениям безопасности и контроля качества мы настоятельно рекомендуем общаться через Chalet Owners.
Мы работаем в Альпах и проверяем всех владельцев и управляющих шале
Вы бронирует напрямую, поэтому лучший сервис и цена гарантированы
Проверьте цены всех свободных шале и апартаментов для аренды в одном месте

