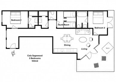
Cala Sagewood — это великолепные роскошные апартаменты с собственной кухней, расположенные в центре Валь-д'Изера. Здесь есть все, что нужно для роскошного лыжного отдыха: удобное расположение рядом с лыжными трассами, потрясающие виды, высококачественная отделка и терраса с видом на знаменитую лыжную трассу La Face. Cala Sagewood может разместить восемь человек в трех спальнях в одном из самых престижных комплексов Валь-д'Изера. Вы находитесь всего в двух минутах езды на лыжах от главного места сбора лыжной школы и подъемников. Эти потрясающие апартаменты располагают двумя спальнями с ванными комнатами, одна из которых оборудована душевой кабиной с паровой баней на двоих. Есть также спальня с двухъярусными кроватями для взрослых с собственной ванной комнатой, в которой могут разместиться четыре человека. Все это дополняется сауной на террасе, где можно позагорать в конце дня. Sagewood идеально подходит для семей или двух небольших групп, которые ищут изысканный роскошный лыжный отдых в Альпах.
Известный архитектор Джон-Чарльз Коварель построил резиденцию Cala в 2019 году в районе Ла-Легеттаз в Валь-д'Изер и вновь повысил уровень шика в деревне. Cala Sagewood площадью 100 м² создает уютную и спокойную атмосферу с впечатляющими видами. Натуральные деревянные полы и стены идеально сочетаются с текстурными стенами и теплыми тонами, создавая атмосферу спокойствия как днем, так и ночью. Ванные комнаты из серого гранита с металлическими элементами и фурнитурой придают каждой спальне теплую элегантность. С трассы вы спускаетесь по нескольким гранитным лестницам на улице к входу. Вся квартира расположена на одном этаже, а две главные спальни находятся по краям для тех, кто ценит уединение. Комната с двухъярусными кроватями находится рядом с открытой кухней и столовой. В гостиной преобладают стеклянные окна от пола до потолка, из которых открывается вид на просторную террасу с круглой сосновой сауной. Высококачественная отделка видна во всей квартире Sagewood и идеально подходит для тех, кто ищет комфорт, стиль и удобное расположение для катания на лыжах.
Registration number 73304 001617 0Z
Cala Sagewood has been welcoming Chalet Owners guests since 2025.
Апартаменты оснащены кухней, и к ним не предоставляются услуги водителя из-за их расположения на склоне рядом с лыжной трассой. Основные магазины и рестораны находятся в 10 минутах ходьбы через заснеженную трассу, где вы найдете множество отличных ресторанов, баров и прекрасную пекарню. В стоимость проживания в этих апартаментах не входит дополнительное питание или вино, но у нас есть винная карта, из которой вы можете заказать бутылки из нашего погреба, если пожелаете. В отеле предоставляются ограниченные услуги консьержа, которые обязательно помогут вам с организацией лыжного снаряжения и бесплатным трансфером до и от прокатных пунктов, а также с оформлением ски-пассов, чтобы вам не пришлось стоять в очереди.
Это описание было автоматически переведено с английского и может быть не совсем точным.| Заезд-Выезд | Стандарт |
|---|---|
| 06 Dec-13 Dec 2026 | € 8,000 |
| 13 Dec-20 Dec 2026 | € 10,500 |
| 20 Dec - 27 Dec 2026 | Сдано |
| 27 Dec - 03 Jan 2027 | Сдано |
| 03 Jan-10 Jan 2027 | € 11,000 |
| 10 Jan-17 Jan 2027 | € 9,000 |
| 17 Jan-24 Jan 2027 | € 9,000 |
| 24 Jan-31 Jan 2027 | € 10,000 |
| 31 Jan-07 Feb 2027 | € 11,500 |
| 07 Feb-14 Feb 2027 | € 11,500 |
| 14 Feb - 21 Feb 2027 | Сдано |
| 21 Feb-28 Feb 2027 | € 13,500 |
| 28 Feb-07 Mar 2027 | € 11,000 |
| 07 Mar-14 Mar 2027 | € 11,000 |
| 14 Mar-21 Mar 2027 | € 11,000 |
| 21 Mar-28 Mar 2027 | € 11,000 |
| 28 Mar - 04 Apr 2027 | Сдано |
| 04 Apr - 11 Apr 2027 | Сдано |
| 11 Apr-18 Apr 2027 | € 10,500 |
| 18 Apr-25 Apr 2027 | € 9,900 |
Все цены указаны в Евро. Даты фиксированные.
Календарь был обновлен 2 days ago.
Вы находитесь всего в двух минутах езды на лыжах от главного места сбора лыжной школы и подъемников.Это описание было автоматически переведено с английского и может быть не совсем точным.
Апартаменты Cala Sagewood sleeps 8 guests across 3 bedrooms.
Апартаменты Cala Sagewood is located in Валь-д'Изер, Франция.
Rental prices start from € 8,500 per week. Final pricing depends on the dates selected.
You can send a booking request directly to the chalet host via the enquiry form on this page. Chalet Owners charges no booking fees and does not act as an agent — you book directly with the verified host. Confirmation is typically within 24 hours.
Payment is made directly to the chalet host. Once the host confirms your reservation, they will send you a contract and an invoice with their preferred payment method — typically bank transfer to the host’s business account, or by credit card when available. A deposit (usually 30–50%) secures the reservation, with the balance due before arrival. Chalet Owners does not collect or process any payment on behalf of hosts.
No. Chalet Owners is a direct-booking marketplace. There are no booking fees, service charges, or commissions added to the chalet host’s rate.
Я даю согласие на передачу информации о моём имени управляющему Апартаменты Cala Sagewood, Валь-д'Изер. Отправляя форму, вы не подтверждаете бронирование. Управляющий шале свяжется с вами и предоставит дополнительную информацию для бронирования. Обмениваясь информацией через платформу CO, вы соглашаетесь с условиями сервиса и обработкой информации, изложенными в Правила и условия. По соображениям безопасности и контроля качества мы настоятельно рекомендуем общаться через Chalet Owners.
Мы работаем в Альпах и проверяем всех владельцев и управляющих шале
Вы бронирует напрямую, поэтому лучший сервис и цена гарантированы
Проверьте цены всех свободных шале и апартаментов для аренды в одном месте

