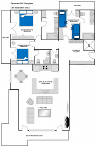
This modern luxury 3 bedroom apartment is located in the sought after Hameau / Rouge area with easy access to La Rouge ski Piste providing 'ski in / ski out' access to the Verbier ski area. Its spacious wrap around balcony offers stunning veiws of Verbier and the mountains beyond.
The sunny lounge with wood floors and an open fireplace has direct access to the balcony. The dining area within the same room, can comfortably seat 8 people. The open plan fully equipped kitchen is a centre piece to the spacious open plan living and dining area.
There are three bedrooms, 2 ensuite double rooms and a double bunk room sleeping up to four people, also with an ensuite bathroom. All bedrooms access a balcony. Upon entering the apartment there is a spacious hallway with Vestiare.
Les Fleurettes is easily accessible by walking, skiing and driving and there is garage parking for one car.
There is a communal ski room with locker for boots and communal laundry faculties.
Fleurettes 205 has been welcoming Chalet Owners guests since 2024.
| Заезд-Выезд | Стандарт |
|---|
Все цены указаны в Швейцарских Франках. Даты фиксированные.
This modern luxury 3 bedroom apartment is located in the sought after Hameau / Rouge area with easy access to La Rouge ski Piste providing 'ski in / ski out' access to the Verbier ski area. Its spacious wrap around balcony offers stunning veiws of Verbier and the mountains beyond.
Les Fleurettes is easily accessible by walking, skiing and driving and there is garage parking for one car.
50m from pistes.
70m from free bus service.
300m from shops and restaurants.Это описание было автоматически переведено с английского и может быть не совсем точным.
Апартаменты Fleurettes 205 sleeps 6 guests across 3 bedrooms.
Апартаменты Fleurettes 205 is located in Вербье, Швейцария.
Rental prices start from CHF 7,700 per week. Final pricing depends on the dates selected.
You can send a booking request directly to the chalet host via the enquiry form on this page. Chalet Owners charges no booking fees and does not act as an agent — you book directly with the verified host. Confirmation is typically within 24 hours.
Payment is made directly to the chalet host. Once the host confirms your reservation, they will send you a contract and an invoice with their preferred payment method — typically bank transfer to the host’s business account, or by credit card when available. A deposit (usually 30–50%) secures the reservation, with the balance due before arrival. Chalet Owners does not collect or process any payment on behalf of hosts.
No. Chalet Owners is a direct-booking marketplace. There are no booking fees, service charges, or commissions added to the chalet host’s rate.
Я даю согласие на передачу информации о моём имени управляющему Апартаменты Fleurettes 205, Вербье. Отправляя форму, вы не подтверждаете бронирование. Управляющий шале свяжется с вами и предоставит дополнительную информацию для бронирования. Обмениваясь информацией через платформу CO, вы соглашаетесь с условиями сервиса и обработкой информации, изложенными в Правила и условия. По соображениям безопасности и контроля качества мы настоятельно рекомендуем общаться через Chalet Owners.
Мы работаем в Альпах и проверяем всех владельцев и управляющих шале
Вы бронирует напрямую, поэтому лучший сервис и цена гарантированы
Проверьте цены всех свободных шале и апартаментов для аренды в одном месте
