Мы рады представить вам шале Le Verbier View, недавно построенное элитное шале в самом сердце деревни Вербье.
Шале Le Verbier View переосмысливает понятие роскоши в Альпах, сочетая передовой современный дизайн с традиционным швейцарским мастерством на обширной территории площадью 1324 кв. м и пяти уровнях.
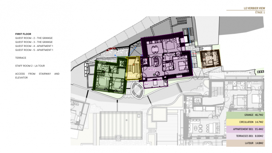
Из шале открываются непревзойденные панорамные виды на долину Вербье. В шале расположены десять высококлассных люксов, созданных для размещения до 20 гостей в формате «бутик-отеля». Верхние этажи отведены под эксклюзивные номера, включающие просторные люксы с ванными комнатами и прямым выходом на частные балконы и террасы общей площадью более 140 кв. м.
Девять прекрасно оборудованных двухместных спален и отдельная комната с двухъярусными кроватями дополняются десятью ванными комнатами, обеспечивая простор и уединение для групп из нескольких поколений или друзей, путешествующих вместе.
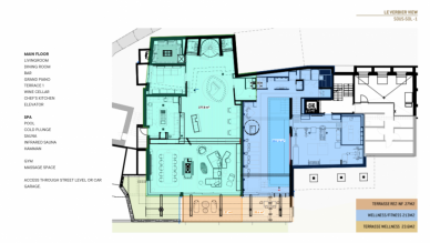
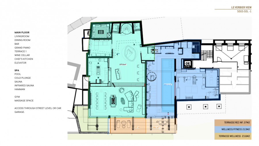
Войдя в главный корпус, вы попадаете в захватывающие дух просторные жилые помещения открытой планировки, где стеклянные двери от пола до потолка обрамляют альпийский пейзаж. Потрясающая обеденная зона и двойная гостиная создают идеальную обстановку для изысканных блюд мирового класса, с камином и беспрепятственным выходом на огромную террасу, обращенную на юг. Профессиональная кухня, оборудованная для работы команды поваров, обеспечивает квалифицированную кулинарную поддержку, а отдельный вход ведет в помещение для хранения лыжного снаряжения и на просторную частную парковку.
Нижние уровни представляют собой образец оздоровительного отдыха, располагая частным спа-центром площадью 213 кв. м. Этот исключительный комплекс включает в себя большой крытый бассейн, полностью оборудованный фитнес-центр, хаммам, сауну и отдельный процедурный кабинет. Снаружи раскинулся окружающий сад площадью 525 кв. м, предлагающий безмятежный отдых на большой высоте.
Дополняет комплекс автономные апартаменты для персонала с отдельным входом, обеспечивающие высочайшие стандарты круглосуточного обслуживания при сохранении полной приватности гостей.
В рамках нашей услуги Hosted Luxe каждая деталь продумана до мелочей, от изысканных блюд до индивидуального планирования со стороны консьержа.
ВЫСОКОКАЧЕСТВЕННОЕ, ИСКЛЮЧИТЕЛЬНО МЕСТНОЕ ГОСТЕПРИИМСТВО
Встреча с шампанским по прибытии
Персональный консьерж
Менеджер шале
Личный шеф-повар и персональные помощники
Ежедневный горячий завтрак
Аперитив и канапе (шесть вечеров)
Ужин из четырех блюд (шесть вечеров, еда и напитки не включены*)
Один свободный вечер для посещения местных ресторанов
Ежедневный послеобеденный чай
Ежедневная уборка номера
Подготовка номера ко сну (шесть вечеров)
Смена постельного белья и полотенец в середине недели
Частный водитель с 08:00 до 00:00
Трансфер из аэропорта
Консьерж-поддержка до прибытия и на курорте
*Еда и напитки оплачиваются отдельно по себестоимости плюс местный НДС.
| Заезд-Выезд | С Услугами |
|---|---|
| 19 Jul-26 Jul 2026 | CHF 82,600 |
| 16 Aug-23 Aug 2026 | CHF 82,600 |
| 06 Dec-13 Dec 2026 | Стоимость по запросу |
| 13 Dec-20 Dec 2026 | Стоимость по запросу |
| 20 Dec-27 Dec 2026 | CHF 265,600 |
| 27 Dec-03 Jan 2027 | CHF 306,400 |
| 03 Jan-10 Jan 2027 | Стоимость по запросу |
| 10 Jan-17 Jan 2027 | Стоимость по запросу |
| 17 Jan-24 Jan 2027 | Стоимость по запросу |
| 24 Jan-31 Jan 2027 | Стоимость по запросу |
| 31 Jan-07 Feb 2027 | Стоимость по запросу |
| 07 Feb-14 Feb 2027 | Стоимость по запросу |
| 14 Feb-21 Feb 2027 | CHF 284,500 |
| 21 Feb-28 Feb 2027 | Стоимость по запросу |
| 28 Feb-07 Mar 2027 | Стоимость по запросу |
| 07 Mar-14 Mar 2027 | Стоимость по запросу |
| 14 Mar-21 Mar 2027 | Стоимость по запросу |
| 21 Mar-28 Mar 2027 | Стоимость по запросу |
| 28 Mar-04 Apr 2027 | CHF 199,200 |
| 04 Apr-11 Apr 2027 | Стоимость по запросу |
Все цены указаны в Швейцарских Франках. Даты фиксированные.
ЦЕНТРАЛЬНОЕ МЕСТО — 3 минуты на автомобиле с водителем
ПОДГОТОВИТЕЛЬНЫЕ СКЛОНЫ — 5 минут на автомобиле с водителем
ГОРНОЛЫЖНЫЙ ПОДЪЕМНИК — 5 минут на автомобиле с водителем
Частный водитель с 08:00 до 00:00Это описание было автоматически переведено с английского и может быть не совсем точным.
Я даю согласие на передачу информации о моём имени управляющему Шале Le Verbier View, Вербье. Отправляя форму, вы не подтверждаете бронирование. Управляющий шале свяжется с вами и предоставит дополнительную информацию для бронирования. Обмениваясь информацией через платформу CO, вы соглашаетесь с условиями сервиса и обработкой информации, изложенными в Правила и условия. По соображениям безопасности и контроля качества мы настоятельно рекомендуем общаться через Chalet Owners.
Мы работаем в Альпах и проверяем всех владельцев и управляющих шале
Вы бронирует напрямую, поэтому лучший сервис и цена гарантированы
Проверьте цены всех свободных шале и апартаментов для аренды в одном месте

