The chalet in La Plagne 1800 has been completely renovated in a spirit combining modernity, chic and comfort.
With 320 m2 on 4 levels, the spacious Bois Melay chalet can very comfortably accommodate up to 15 people.
Located near the slopes in La Plagne, rent this luxurious chalet with spacious volumes and unique relaxation facilities: chalet with swimming pool, sauna, gym, cinema room, relaxation room.
Chalet du Bois Melay is nestled in the forest overlooking the charming village resort of La Plagne 1800. In a wooded and quiet environment, the chalet is located just 400 m from the ski slopes of the Paradiski area (5 minutes walk from the slopes) , with easy access via a small path among fir trees and larch trees.
The free municipal shuttle has its stop 50 meters from the chalet. Shops are in the immediate vicinity and the village center is 200 meters away.
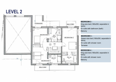
Everyone will be able to have their privacy with 7 bedrooms all en suite with bathrooms, including two very spacious master bedrooms en suite with bathtub. The high-end bedding will bring comfort to your nights. Each room has a balcony or terrace with a lovely view of the mountain or forest.
The large living room is bright with large bay windows and a cathedral roof with the exposed framework. It will allow you to enjoy a rejuvenating environment with a superb view of the mountain and the snow-covered fir trees. The warmth of the interior wood, the soft sofas and the design fireplace with three glass sides will offer you unparalleled moments of relaxation.
The large living room is extended by a small adjacent living room which offers you another friendly relaxation and sharing space and a cozy library. A tuned piano is very popular with musicians.
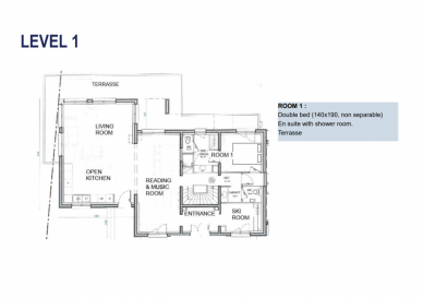
The open kitchen and the large table will welcome you for your family dinners or seminars, with the possibility of dining together for 15 people.
The Bois Melay chalet has an exceptional relaxation area, unique in La Plagne. You will particularly appreciate the superb heated indoor swimming pool measuring 6 meters by 3 with a view of the snow-covered fir trees. The gym will allow you to do fitness while enjoying the mountain view. A sauna and a relaxation room will help you relax.
Unique in La Plagne, a modular room can accommodate your film screenings on the big screen, or your workshops or sub-committee groups in a business seminar.
du Bois Melay has been welcoming Chalet Owners guests since 2023.
The chalet can be rented on a half board catered or self-catered basis.
We will organize your all-inclusive stay tailor-made for you according to your needs, with the rental of the Bois Melay chalet, a luxury chalet in La Plagne, catering using local Savoie products and activities for all with our partners, for so you just have to enjoy it and make memories.
The catered price includes :
• The half board catering prepared everyday by our chefs and delivered daily to the chalet. (No need to be present for the delivery).
- French breakfasts (fresh bread, pastries from the bakery, local jam, tea, coffee)
- Afternoon teas with sweet treats (crepes, fruits and chocolate fondue, cakes...)
- Dinners including a main course and a dessert
- Beverages are not included, but we offer an additional wine menu for delivery.
| Arrival-Departure | Standard | With Services |
|---|---|---|
| 12 Apr-19 Apr 2026 | € 12,000 | € 19,600 |
| 19 Apr-26 Apr 2026 | € 10,000 | € 17,600 |
| 26 Apr-03 May 2026 | € 10,000 | € 17,600 |
| 29 Nov-06 Dec 2026 | € 10,000 | — |
| 06 Dec-13 Dec 2026 | € 10,000 | — |
| 13 Dec-20 Dec 2026 | € 12,000 | — |
| 20 Dec - 27 Dec 2026 | Booked | Booked |
| 27 Dec-03 Jan 2027 | € 32,000 | — |
| 03 Jan-10 Jan 2027 | € 14,000 | — |
| 10 Jan-17 Jan 2027 | € 14,000 | — |
| 17 Jan - 24 Jan 2027 | Booked | Booked |
| 24 Jan-31 Jan 2027 | € 14,000 | — |
| 31 Jan-07 Feb 2027 | € 16,000 | — |
| 07 Feb-14 Feb 2027 | € 28,000 | — |
| 14 Feb-21 Feb 2027 | € 32,000 | — |
| 21 Feb-28 Feb 2027 | € 32,000 | — |
| 28 Feb-07 Mar 2027 | € 28,000 | — |
| 07 Mar-14 Mar 2027 | € 16,000 | — |
| 14 Mar-21 Mar 2027 | € 14,000 | — |
| 21 Mar-28 Mar 2027 | € 14,000 | — |
| 28 Mar-04 Apr 2027 | € 15,000 | — |
| 29 Apr-11 Apr 2027 | € 15,000 | — |
| 11 Apr-18 Apr 2027 | € 12,000 | — |
| 18 Apr-25 Apr 2027 | € 10,000 | — |
| 25 Apr-02 May 2027 | € 10,000 | — |
All prices are in Euro. Dates are fixed.
Chalet du Bois Melay is nestled in the forest overlooking the charming village resort of La Plagne 1800. In a wooded and quiet environment, the chalet is located just 400 m from the ski slopes of the Paradiski area (5 minutes walk from the slopes), with easy access via a small path among fir trees and larch trees.
The free municipal shuttle has its stop 50 meters from the chalet. Shops are in the immediate vicinity and the village center is 200 meters away.
Chalet du Bois Melay sleeps 6–15 guests across 7 bedrooms.
Chalet du Bois Melay is located in La Plagne, France.
Rental prices start from € 17,600 per week. Final pricing depends on the dates selected.
You can send a booking request directly to the chalet host via the enquiry form on this page. Chalet Owners charges no booking fees and does not act as an agent — you book directly with the verified host. Confirmation is typically within 24 hours.
Payment is made directly to the chalet host. Once the host confirms your reservation, they will send you a contract and an invoice with their preferred payment method — typically bank transfer to the host’s business account, or by credit card when available. A deposit (usually 30–50%) secures the reservation, with the balance due before arrival. Chalet Owners does not collect or process any payment on behalf of hosts.
No. Chalet Owners is a direct-booking marketplace. There are no booking fees, service charges, or commissions added to the chalet host’s rate.
I give permission for my name to be shared with the host of Chalet du Bois Melay, La Plagne. Please note that by submitting the form you are not confirming a booking. Chalet host will contact you with a quote and further details for booking. When communicating about chalet via CO, you agree with terms of service and processing of communications as set out in Terms & Conditions. For safety and quality control reasons, we strongly recommend communicate through Chalet Owners.
We are based in the Alps and check every chalet owner and operator
You book directly, so the best price and service are guaranteed
Check overall prices and availability at one place

