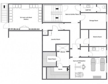
Welcome to luxury Chalet Griffin – a beautiful chalet for rent in St. Anton am Arlberg. The chalet is perfectly located in the exclusive and peaceful Nasserein enclave of the village at the end of a quite, exclusive lane surrounded by fields. Not only is it a four-minute walk away from the Nasserein gondola, ski school and rental, but also only a 10 minute walk into the bustling heart of the village. The chalets elevated location allows for spectacular views of the valley and surrounding peaks. The interior architects, MM Design, who refurbished the famous Brenners Park Hotel in Baden-Baden, took a dated St. Anton family house and turned it into a cozy, high-end home where modern meets antique. The interior will delight all your family and friends as they find comfort in the soft colors and high quality craftsmanship that have been combined to created a modern, elegant alpine chic. The ground floor is a beautiful and opulent living and dining area where large windows flood the room with light. The bedrooms are spacious and can either be made up with twin or double beds. After an exhilarating day on the slopes you can watch the latest movie in the chalet's cinema room or make the most of the gorgeous wellness area on the lower floor with its hammam, sauna, gym, and relaxation area - it is definitely time to celebrate with a glass of something chilled and sparkling!
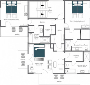
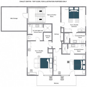
Six supremely luxury bedrooms are set out over two floors of the Chalet with amazing mountain views. Five of them can be configured according to your group into double or twin bedrooms. All bedrooms have a flat screen TV, a safe and en-suite bathroom with luxury towels, bathrobes and slippers as well as a hairdryer and exclusive toiletries. Four bedrooms have private balconies, dressing rooms and sitting areas.
Griffin has been welcoming Chalet Owners guests since 2016.
Chalet Griffin is sold on a weekly basis with the Bed & Breakfast or the Full Catered Service.
Bed & Breakfast: With this service you can enjoy your private chalet - from a personally prepared breakfast to a freshly baked afternoon tea in front of the crackling fireplace. On arrival, your host will welcome you and take care of all your needs and questions throughout your stay at your private Chalet.
In the evening for dinner you can take advantage of the many fantastic restaurants in St. Anton. Your private host will be happy to advise you and reserve a table for your group.
Enjoy a healthy , varied breakfast every morning. Look forward to fresh hot rolls, bread and pastries from the local bakery, a selection of healthy cereals, yoghurts, a wonderful choice of regional sausages and cheeses, delicious homemade jams and honey, fresh fruit, boiled eggs, coffee, tea, fresh squeezed orange juice and our home pressed apple juice.
When you return to your private chalet from a sporty skiing day, a lovingly prepared afternoon tea with homemade cake awaits you by the fireplace. Your host will be on site to serve you fresh tea or coffee.
Full Catered: Our private chefs are experienced professionals trained alongside Michelin star chefs, who have worked in some of the best restaurants in the world and in the most outstanding private households. Your private chef will work with you to create the perfect evening menu for your group. Special nutritional needs, children's meals and other specific wishes will be discussed before your arrival. Also during your stay your chef is ready to adapt the menu to your wishes. Your private chef will also offer you a selection of cooked dishes with pancakes or eggs for your daily breakfast. Champagne and a selection of delicious canapés will be served before dinner. A three-course menu awaits you and your friends or family in an exclusive, private atmosphere on six evenings. After dinner you can relax by the wood burning fireplace with a digestive. Dinner will be accompanied by a great selection of fine house wines, beers and soft drinks.
| Arrival-Departure | Standard | With Services |
|---|---|---|
| 13 Dec - 20 Dec 2026 | Booked | Booked |
| 20 Dec - 27 Dec 2026 | Booked | Booked |
| 27 Dec - 03 Jan 2027 | Booked | Booked |
| 03 Jan - 10 Jan 2027 | Booked | Booked |
| 10 Jan-17 Jan 2027 | € 30,000 | € 41,000 |
| 17 Jan-24 Jan 2027 | € 30,000 | € 41,000 |
| 24 Jan-31 Jan 2027 | € 30,000 | € 41,000 |
| 31 Jan-07 Feb 2027 | € 33,000 | € 44,000 |
| 07 Feb - 14 Feb 2027 | Booked | Booked |
| 14 Feb-21 Feb 2027 | € 56,000 | € 68,000 |
| 21 Feb-28 Feb 2027 | € 33,000 | € 44,000 |
| 28 Feb-07 Mar 2027 | € 33,000 | € 44,000 |
| 07 Mar-14 Mar 2027 | € 32,000 | € 43,000 |
| 14 Mar-21 Mar 2027 | € 32,000 | € 43,000 |
| 21 Mar-28 Mar 2027 | € 32,000 | € 43,000 |
| 28 Mar-04 Apr 2027 | € 30,000 | € 41,000 |
| 04 Apr-11 Apr 2027 | € 30,000 | € 41,000 |
All prices are in Euro. Dates are fixed.
Chalet Griffin is located in Sankt Anton am Arlberg in the exclusive and quiet district of Nasserein, only three minutes walk from the main lift station Nassereinerbahn, the ski school and several ski rental shops. The town centre of St. Anton can be reached in a few minutes by car or in ten minutes by foot.
Skilift Nassereinerbahn 300 m
Ski rental shops 300 m
Ski school 300 m
Skibus stop 100 m
St. Anton Center 10 min. walk
Chalet Griffin sleeps 12 guests across 6 bedrooms.
Chalet Griffin is located in St. Anton, Austria.
Rental prices start from € 41,000 per week. Final pricing depends on the dates selected.
You can send a booking request directly to the chalet host via the enquiry form on this page. Chalet Owners charges no booking fees and does not act as an agent — you book directly with the verified host. Confirmation is typically within 24 hours.
Payment is made directly to the chalet host. Once the host confirms your reservation, they will send you a contract and an invoice with their preferred payment method — typically bank transfer to the host’s business account, or by credit card when available. A deposit (usually 30–50%) secures the reservation, with the balance due before arrival. Chalet Owners does not collect or process any payment on behalf of hosts.
No. Chalet Owners is a direct-booking marketplace. There are no booking fees, service charges, or commissions added to the chalet host’s rate.
I give permission for my name to be shared with the host of Chalet Griffin, St. Anton. Please note that by submitting the form you are not confirming a booking. Chalet host will contact you with a quote and further details for booking. When communicating about chalet via CO, you agree with terms of service and processing of communications as set out in Terms & Conditions. For safety and quality control reasons, we strongly recommend communicate through Chalet Owners.
We are based in the Alps and check every chalet owner and operator
You book directly, so the best price and service are guaranteed
Check overall prices and availability at one place

