Chalet Carving is one of the few true ‘ski in ski out’ chalets in Morzine. Positioned at the foot of the main Pleney ski slopes and lifts, this is arguably Morzine’s best-located on piste self-catered chalet. This ever-popular chalet (with hot tub, sauna and TV/play room) is in a quiet location, yet less than 100 metres from the bustle of central Morzine. Accommodates 10-13 in 5 bedrooms, all ensuite.
Enviably situated to provide slope-side perfection, this beautiful chalet is the epitome of ski holiday convenience. Boasting an unbeatable on piste and central Morzine location, Chalet Carving is mere a snowball’s throw from Morzine’s main Pleney lifts, home runs and ski schools. The location has to be seen to be believed!
The chalet is a flat one minute’s stroll from the Tourist Office in the village square and the surrounding array of shops, bars, cafes and restaurants. The discrete set-back location is quite remarkable given such close proximity to all of Morzine’s many resort centre amenities as well as the main slopes leading back to the Pleney cable car and chairlift.
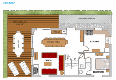
Chalet Carving is classically Savoyard in style and full of alpine charm – a ‘proper’ mountain chalet that is warm, cosy and comfortable. On the middle floor, a very spacious open-plan lounge and dining area with wood panelling and log burner creates a relaxed ‘home from home’ environment. French doors open on to a large sun terrace fitted with a luxury hot tub affording majestic views of the Pleney ski slopes. Watch skiers and boarders returning to Morzine village, whilst the bright glow of a weekly torch lit night skiing procession by ESF instructors is not to be missed from the best viewpoint in town!
The chalet’s sauna will help soothe ski-weary muscles at the end of the day and the television / play room is always popular as an extra living (or sleeping) space. The outside area next to the slopes provides a safe area for children to play or for adults to step into their bindings for swift lift access into the Morzine / Les Gets ski area. There is a drying room, ski and snowboard storage, heated boot warmers and private parking available.
The property accommodates up to 12 guests in 5 well-appointed ensuite bedrooms. All but one of the bedrooms has a balcony with lovely views. If required, the sofa bed in our TV room gives the opportunity for a 6th ‘overflow’ bedroom; whilst this does not permit capacity to increase beyond 12 guests, it does allow for flexibility with rooming allocations (a guest staying in the TV room has separate use of the sauna room shower and toilet facilities).
Carving has been welcoming Chalet Owners guests since 2018.
We care about your holiday and are experts at 'what we do'.
Attention to detail is paramount. Our aim is to meet and exceed expectations. We take pride in providing the highest standards of caring personal service –both in our UK office throughout the booking process and in resort during your holiday. From first enquiry to departure day, our professional and friendly team is available to help with all aspects of your holiday as much or as little as you wish.
We offer a variety of services to make your stay as hassle-free as possible, ranging from a winter chauffeur shuttle service or summer activity booking service to arranging an in-house massage or just reserving your favourite local restaurant.
Included:
• Help with organising all aspects of your holiday (lift passes, ski school, equipment, travel arrangements etc)
• Our renowned personal service from professional and friendly staff
• Welcome pack
• Resort minibus shuttle service and supermarket pick-up (during available times and if our airport transfers are booked)
• Local holiday tax
• End of holiday cleaning (conditions apply)
| Arrival-Departure | Standard |
|---|---|
| 13 Dec-20 Dec 2026 | £ 4,020 |
| 20 Dec-27 Dec 2026 | £ 7,175 |
| 27 Dec - 03 Jan 2027 | Booked |
| 03 Jan-10 Jan 2027 | £ 5,630 |
| 10 Jan - 17 Jan 2027 | Booked |
| 17 Jan-24 Jan 2027 | £ 7,175 |
| 24 Jan-31 Jan 2027 | £ 7,175 |
| 31 Jan-07 Feb 2027 | £ 8,045 |
| 07 Feb-14 Feb 2027 | £ 8,045 |
| 14 Feb-21 Feb 2027 | £ 11,375 |
| 21 Feb - 28 Feb 2027 | Booked |
| 28 Feb-07 Mar 2027 | £ 8,045 |
| 07 Mar-14 Mar 2027 | £ 7,175 |
| 14 Mar-21 Mar 2027 | £ 5,630 |
| 21 Mar-28 Mar 2027 | £ 4,020 |
| 28 Mar - 04 Apr 2027 | Booked |
| 04 Apr-11 Apr 2027 | £ 4,020 |
| 11 Apr-18 Apr 2027 | Price on application |
All prices are in Sterling Pound. Dates are fixed.
Chalet Carving is arguably Morzine’s best-located chalet, providing a true ‘ski in, ski out’ holiday. The property is positioned at the foot of the main ski slopes & lifts, yet discrete and secluded, with the village centre just 100 metres away.
Ski back to within: 30 metres
Distance from Pleney lift by foot/ shuttle: 1 minute (100 metres)
Distance to Felix Ski shop & button lift by foot/ shuttle: 5 minutes (400 metres) / 1 minute
Distance from nearest bus stop for Prodains/Avoriaz by foot/ shuttle: 1 minute (100 metres)
Distance from resort centre by foot/ shuttle: 1 minute (100 metres)
Distance from Super Morzine lift by foot/ shuttle: 3 minutes (250 metres) / 1 minute
Chalet Carving sleeps 10–12 guests across 5 bedrooms.
Chalet Carving is located in Morzine, France.
Rental prices start from £ 3,770 per week. Final pricing depends on the dates selected.
You can send a booking request directly to the chalet host via the enquiry form on this page. Chalet Owners charges no booking fees and does not act as an agent — you book directly with the verified host. Confirmation is typically within 24 hours.
Payment is made directly to the chalet host. Once the host confirms your reservation, they will send you a contract and an invoice with their preferred payment method — typically bank transfer to the host’s business account, or by credit card when available. A deposit (usually 30–50%) secures the reservation, with the balance due before arrival. Chalet Owners does not collect or process any payment on behalf of hosts.
No. Chalet Owners is a direct-booking marketplace. There are no booking fees, service charges, or commissions added to the chalet host’s rate.
I give permission for my name to be shared with the host of Chalet Carving, Morzine. Please note that by submitting the form you are not confirming a booking. Chalet host will contact you with a quote and further details for booking. When communicating about chalet via CO, you agree with terms of service and processing of communications as set out in Terms & Conditions. For safety and quality control reasons, we strongly recommend communicate through Chalet Owners.
We are based in the Alps and check every chalet owner and operator
You book directly, so the best price and service are guaranteed
Check overall prices and availability at one place

