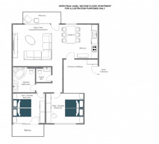
Self-catered two-bedroom apartment Kern Peak is a delightful choice of accommodation that sleeps four. Kern Peak is both spacious with 80m2 and very central, literally 5 seconds from the main street, and just 50m from both the Gornergrat and main train stations. The apartment is located on the second floor of Haus Nevada with East and West facing balconies.
Kern Peak newly refurbished apartment consists of a living room with with a new kitchen and dining area, two bedrooms, a bathroom with bath-tub, and two balconies. There is also a separate guest WC with sink. The beds can be configured as a double or twin beds. The cosy living room features a smart flat screen TV and Wifi of course. The kitchen is fully equipped with dishwasher, oven, hob, fridge freezer, Nespresso coffee machin
Kern Peak apartment is a rare, very central and modern property, ideal for four people looking to get away in the mountains, with more space than most superior hotel suites, privacy, and a kitchen where you can prepare your own meals. There is also easy access to the huge variety of restaurants in Zermatt’s main street.
The Haus Nevada building is conveniently situated close to the Gornergrat train base lift station which is a 2 minute walk away. There are many famous restaurants nearby.
Kern Peak can be booked together with Wheeler Peak on the floor below to accommodate up to six people.
Kern Peak has been welcoming Chalet Owners guests since 2025.
When you book on a self-catered basis, you will be looked after your personal Concierge, before, during and after your stay with us. The following are included in your reservation:
• Exclusive use of the chalet and its facilities
• Bed linen, towels, guest amenities on arrival
• Assistance from our staff pre-arrival and in resort assistance from our concierge team
• Welcome basket (for all bookings 5 days or more)
• Cleaning on departure
• Free access to high-speed wireless internet
• Duty Manager available 24/7
• All taxes except Visitor’s Tax
• Your personal Concierge will assist you with our concierge services
Additionally the following can be further organised at an extra fee:
• Housekeeping services (daily cleaning only, cleaning and towels, cleaning, towels and linen)
• Extra linen and towels (delivery only)
• External laundry service (washed and ironed)
• Shopping Service, extra firewood
• Various other services as offered by our partner suppliers
Your dedicated Concierge will be happy to assist you with more information about our services and make your arrangements as necessary.
| Arrival-Departure | Standard |
|---|---|
| 27 Nov-04 Dec 2026 | CHF 2,600 |
| 04 Dec-11 Dec 2026 | Booked |
| 11 Dec-18 Dec 2026 | CHF 3,500 |
| 19 Dec-26 Dec 2026 | Booked |
| 26 Dec-02 Jan 2027 | CHF 10,000 |
| 02 Jan-09 Jan 2027 | CHF 5,900 |
| 09 Jan-16 Jan 2027 | CHF 4,800 |
| 16 Jan-23 Jan 2027 | CHF 4,800 |
| 23 Jan-30 Jan 2027 | CHF 5,400 |
| 30 Jan-06 Feb 2027 | CHF 5,400 |
| 06 Feb-13 Feb 2027 | CHF 5,600 |
| 13 Feb-20 Feb 2027 | Booked |
| 20 Feb-27 Feb 2027 | CHF 6,200 |
| 27 Feb-06 Mar 2027 | CHF 5,000 |
| 06 Mar-13 Mar 2027 | CHF 5,000 |
| 13 Mar-20 Mar 2027 | CHF 5,000 |
| 20 Mar-27 Mar 2027 | CHF 5,000 |
| 27 Mar-03 Apr 2027 | CHF 5,000 |
| 03 Apr-10 Apr 2027 | CHF 3,500 |
| 10 Apr-17 Apr 2027 | CHF 3,200 |
All prices are in Swiss Francs. Dates are fixed.
Calendar was updated 2 weeks ago.
Very central location, 50 m from the Gornergrat lift and the main train station. The Haus Nevada building is conveniently situated close to the Gornergrat train base lift station which is a 2 minute walk away. There are many famous restaurants nearby.
Zermatt train station - 1-minute walk.
Gornergrat lift station - 1-minute walk.
Sunnega lift station - 8-minute walk.
Klein Matterhorn lift station - 15-minute walk.
Apartment Kern Peak sleeps 4 guests across 2 bedrooms.
Apartment Kern Peak is located in Zermatt, Switzerland.
Rental prices start from CHF 2,800 per week. Final pricing depends on the dates selected.
You can send a booking request directly to the chalet host via the enquiry form on this page. Chalet Owners charges no booking fees and does not act as an agent — you book directly with the verified host. Confirmation is typically within 24 hours.
Payment is made directly to the chalet host. Once the host confirms your reservation, they will send you a contract and an invoice with their preferred payment method — typically bank transfer to the host’s business account, or by credit card when available. A deposit (usually 30–50%) secures the reservation, with the balance due before arrival. Chalet Owners does not collect or process any payment on behalf of hosts.
No. Chalet Owners is a direct-booking marketplace. There are no booking fees, service charges, or commissions added to the chalet host’s rate.
I give permission for my name to be shared with the host of Apartment Kern Peak, Zermatt. Please note that by submitting the form you are not confirming a booking. Chalet host will contact you with a quote and further details for booking. When communicating about chalet via CO, you agree with terms of service and processing of communications as set out in Terms & Conditions. For safety and quality control reasons, we strongly recommend communicate through Chalet Owners.
We are based in the Alps and check every chalet owner and operator
You book directly, so the best price and service are guaranteed
Check overall prices and availability at one place

